Maison moderne en béton avec un porche central, entourée de végétation tropicale.

Villa

CORAIL

Saint-François, Guadeloupe

Nous aimons cette architecture qui s'efface pour mieux révéler son site. Une maison qui respire avec les alizés, où l'ombre portée de la terrasse couverte invite à la contemplation.
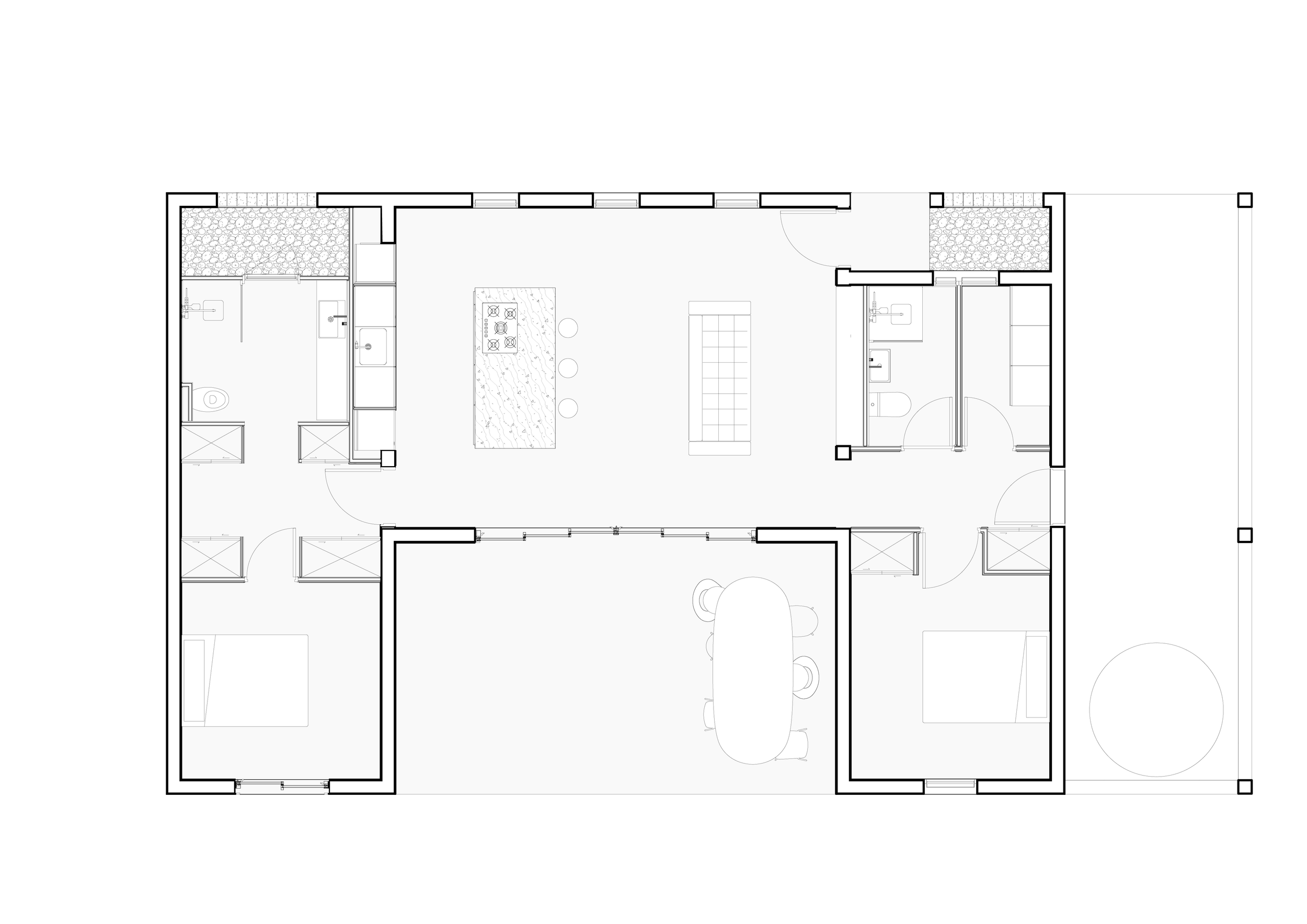
Cette villa contemporaine de 90 m² développe deux chambres autour d'un séjour traversant largement vitré. Le béton brut teinté dans la masse constitue l'enveloppe principale, associé à une charpente bois apparente et des claustras en terre cuite préfabriqués localement. À l'intérieur, les matériaux dialoguent sans artifice, pierre naturelle de l'îlot cuisine, carrelage artisanal, bois sombre du mobilier.
La salle de bain s'ouvre sur un patio végétalisé, filtre de lumière et de verdure. L'habitat intègre une gestion autonome de l'eau: cuves de récupération des eaux pluviales alimentant sanitaires et machine à laver via un système de filtration. La ventilation naturelle traversante et l'isolation performante de la toiture assurent le confort thermique en climat tropical.
Surface parcelle / m²
850
Surface construite / m²
90
Chambres
2
Niveaux
RDC
Typologie
Maison individuelle